Vom HackMD ins Wiki kopiert (20190101): https://hackmd.ctdo.de/IwMwTAzAxgLMUFoBsIDswEwCbAJwIA4QBDAUwRFKuIAYJwQBWGoA?both
35c3 Teststrecke
Richtlinien: https://www.leipziger-messe.de/media/001_global_media/Aussteller/PDF/Technische_Richtlinien_2018.pdf
Idee/Konzept:
Wir möchten dieses Jahr die Strecke dekorieren. Es wird es eine Lichtschranke mit Anzeige geben (Grafana Stats incoming). Es soll einen Zeitplan geben, an dem wir öffentliches Fahren anbieten und unsere Gefährte dafür ausleihen. Ebenso „Hoverboard Lernkurse“ zu diesen Zeiten. Ebenso wird es Slots für das fahren von ferngesteuerten Autos geben.
Die Strecke soll extra Bunt beleuchtet werden und auch Teilweise mit einem Molton abgehangen werden (was im Rahmen der Brandschutz- und Vst.Verordnung möglich ist). Quasi ein kleiner Tunnel.
- Boxengasse als „Ruhezone“ für erstmaliges Aufsitzen - Molton um einen Bereich abzudunkeln (Tunnel) - Winkekatze (120cm hoch) in einer der Ecken - HT-Rohre ([B1 schwerentflammbar](https://www.hornbach.de/data/shop/D04/001/780/497/950/43/0209756_Doc_01_DE_20160122162201.pdf)) als Absperrung, verbunden mit Winkeln/Bögen/T-Stücken - LED Scheinwerfer an Traverse befestigt
Im Bild sieht man die schwarze Schraffur welche ein Traversenaufbau von 3x10m ist. Dieser Aufbau soll an den beiden 10m Seiten mit Molton (schwarz) abgehangen werden. An den beiden 3m Seiten evtl Molton. Decke auch abgehängt mit Molton.
(Brandschutz/Sprinkler Regelungen Messe wg. 30m^2 Grenze)
Die zulässige Punktbelastung der Traverse an der längsten Seite (10m) beträgt in der Mitte 440kg, also für Molton und 8 Lampen mehr als Ausreichend. (~100kg pro lfm)
Traversenaufbau
10×3 Meter mit Durchfahrtshöhe von 2,5m (oberkante ca 3m)
- 4x 1,5m + 4x1m (so dass Unterkante min. 2,5m ist [Durchfahrtshöhe] ) - 4x Bodenplatte - 4x Ecke - 2x T - 3x 2,5m (od. 2,25m) (so dass man Außenmaß auf ~3m kommt) - 2x 4m + 2x 2,5m + 2x 1m (so dass man Außenmaß auf 10m kommt) - Molton: 3x 10m * 3m - Molton: 2x 3m * 3m (den man zerschneiden darf) - Molton Clips: 60 Stück
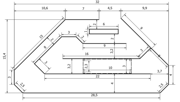
Die Maße der Strecke in etwa:
PDF: https://trash.ctdo.de/b/5c13972f5c3/Teststrecke35c3_20181214.pdf
Die Rohre werden in einander gesteckt werden (wie eben vorgesehen) und sollen dadurch in sich stabilität bekommen. Wir möchten diese an einigen Punkten mit dem Boden verknoten (dort wo die Schächte im Boden sind) um ein zu dolles verrutschen zu vermeiden.
Es hat sich gezeigt dass selbst ein mit Sand beschwerter Aufbau auf dem Boden verrutscht. Dies haben wir auf dem 34C3 durch regelmäßiges „zurückschieben“ kompensiert.
Wir packen Sandsäcke ein und entscheiden beim Aufbau ob wir diese wirklich benötigten. Wir besorgen dann im Bauhaus-Baumarkt Leipzig den Sand.
Anforderungen Strom/Kabel
- Strom(+PE), DMX, Netzwerk an der Traverse - Strom, DMX an Förderturm am Eingang
Material:
Was haben wir, was brauchen wir?
Bestand
- ca 50 HT Rohre 2,5m und 1m größtenteils ohne Gummis (125m)
Bedarf
Strecke/Bande
- 162m Rohre, abz. Bestand (125m) = zu Kaufen 37m →40m - Bogen 90°: 5x →
- Kann durch 2x 45° ersetzt werden (wenn nötig)
- Bogen 45°: 13x → - Abzweigung: 1x → - Doppelmuffe: 4 (for good measure) → 8€ - 40 Gummis → 20€ - Sandsäcke → ?€ TBD
→ 242€ (ohne Säcke)
Beleuchtung
- 8x LED Spot RGBW (DMX) - 8x LED Wash RGBW (DMX) - 16x Clamps für Traversenmontage - Nx DMX- und Stromkabel
Klären
- Kann man die Bodenplatten verschieben und somit eine Möglichkeit schaffen die Rohre am Boden zu fixieren? → evtl vorort klären - Kann der Molton von c.epp mitbestellt werden? → Sonst legt Lucas aus und holt sich Geld von CW zurück - Kann c.epp LED-Scheinwerfer besorgen? → angefragt, noch unklar - Wie bestellen/kaufen wir HT-Rohre+Winkel/Bögen?
Logistik
- Vor 14.12: Besorgen von weiteren Rohren+Winkeln und Abladung bei Claas - Für die Winkel/Bögen benötigen wir Kartons oder Kisten damit diese stapelbar werden
Einpacken
- Besen, Kehrblech, Schaufel - Handschuhe - Werkzeug
- Hammer
- Akkuschrauber
- Schrauben
- Bohrer
- Handkreissäge
- Ladegeräte
- Stichsäge
- Kabelbinder
- Maßband/Zollstock/Laserdistanzmessgerät von Pascal
- Reifenaufpumpgerät (muss der Treff noch kaufen)
- Druckluftschlauch+Ausblasepistole
- Druckminderer samt Steckverbindungsdinger/Verteiler
Nachtrag
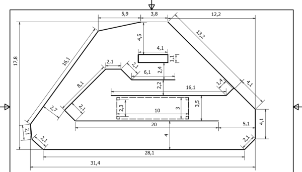
Zeichnung (Tatsächlicher Aufbau)
PDF: https://trash.ctdo.de/b/5c1f8d63208/Teststrecke35c3_20181222_gemessen.pdf
Linien in der Zeichnung beschreiben die Mittellinien durch die Rohre. 2m 110er Rohre sind ende bis ende etwa 2,07m lang, verlängern beim zusammenstecken aber um exakt 2m. Ein 45° Winkelstück verlängert um 0,06m, sodass ein 2m Rohr mit zwei 45° winkeln an den Enden eine insgesamt 2,12m lange linie ergibt. Die Bögen links unten bestehen aus 45° winkeln, wurden aber leicht nach außen gebogen beim. Zum Zusammenstecken der Rohre mit den Dichtungen wird Schmiermittel benötigt. Eine 150mL Tube reicht vermutlich aus. (Wir hatten 2 gekauft, 4€ /stk). Vor den Traversenpfeilern wurden je Ecke ein 2m Rohr schräg angesägt und mit Draht an das Bandenrohr gebunden, sodass ein Frontales auffahren auf die Traversenpfeiler verhindert wird. Am dessen offenen Ende steckt ein 90° Winkel. Zudem sind sie mit Draht an die Traversen festgezurrt.
Insgesamt 12 Säcke voll Sand a 12,5 kg sind strategisch außerhalb von kritischen Kurven und langen Strecken platziert. Teilweise auch im Inneren, dort aber auf der Seite, an der ein gegen den Sandsack fahren unwarscheinlich ist. Jeder Sack ist mit 1mm? dicken Stahldraht am Rohr festgebunden und steht auf einem kleinen Stück Messeteppich, welcher mit doppelseitigem Messetauglichen Klebeband auf den Boden geklebt ist, um ein Verrutschen zu minimieren. Es wurde aus B1-Gründen kein Seil verwendet.
Der 3m x 10m Tunnel (ca. Aussenmaß) (höhe 3m) wurde mit schwarzem Molton (Grün in Zeichnung) abgehangen. 2 Stücke 3m x 11m Für die Seiten, und zwei 3m x 6m Stücke für das Dach (da nur kleine Stücke zur Verfügung standen). Die Skizze zeigt eine linke Seite vom Tunnelausgang betrachtet. Der Seitenmolton befindet sich im Inneren und wird mit Spannfix Holdons und Gummis (Rot in Zeichnung) an der oberen Traverse befestigt (ca einen jeden halben Meter). Darüber liegen 6 Stück 2,96m Latten (Braun in Zeichnung) im Abstand von etwa 1,3m, um den Deckenmolton zu halten. Die Latten sind an den Enden mit einem Loch versehen, um sie mit B1 Kabelbindern (Blau in Zeichnung) zu fixieren. Darüber wird der Molton gelegt und ebenfalls mit Spannfix befestigt. Überstehender Molton an den Seiten und von der Decke wurde umgeschlagen und befestigt.
Um nicht frontal gegen die Traversen zu fahren wurde je Ecke ein 2m Rohr schräg angesägt und mit Draht durch 2 gebohrte Löcher an der bestehenden Bande befestigt.
















